Casa de pueblo a Beniarbeig
Beniarbeig

Casa de pueblo a Beniarbeig

192.000 €

3 habitacions 2 banys 140 m²
Beniarbeig

Casa de pueblo a Beniarbeig

3 habitacions
2 banys
140 m² construïts

Descripció

Casa de pueblo para reforma en el Centro de Beniarbeig

Descripción

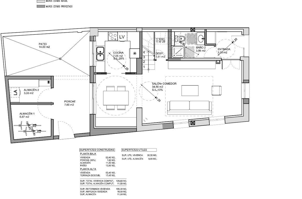
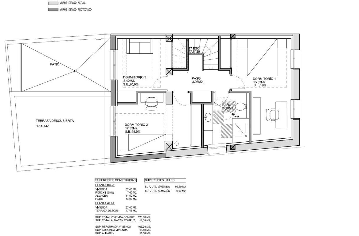
Presentamos esta casa esquinera con doble acceso, es una joya oculta que espera ser transformada en un hogar acogedor. El inmueble cuenta con proyecto y licencia concedida para 140 m², lo que permite personalizar cada detalle a su gusto ahorrando trámites administrativos. El tejado ya ha sido renovado por completo e incluye aislamiento, además de disponer de suministros de luz, agua y conexión al alcantarillado. Asimismo, existe una propuesta de diseño para 162 m², para la cual se podría solicitar una ampliación de la licencia actual. A continuación, detallamos la distribución del proyecto:"

Planta baja: Tal y como se muestra en los planos, está previsto realizar un salon, comedor, cocina abierta con salida a la zona exterior tracera (que puede ser un patio, terraza o porche) y un baño con ducha.

Planta primera: Se distribuyen 3 dormitorios, uno de ellos con acceso directo a una terraza descubierta, y un baño con ducha.

Ubicación

Ubicada en el corazón de Beniarbeig, la vivienda mantiene la esencia de un pueblo tradicional, combinando la tranquilidad de la vida rural, goza de una ubicación privilegiada, a solo dos pasos de todos los servicios esenciales y del centro de salud. Además, se encuentra a tan solo 5 km del centro comercial de Ondara, donde podrá disfrutar de una amplia oferta de ocio con cines, restaurantes, bares y tiendas de todo tipo.

Preu 192.000 €
Referència RH20723
Tipus Casa adossada
construïts 140 m²