Proyecto de villa en una sola planta en venta en Calpe
1.525.000 €
Proyecto de villa en una sola planta en venta en Calpe
Descripció
PROYECTO: Villa moderna de una sola planta en venta en Pla Roig, Calpe
Esta lujosa villa de una sola planta es la combinación perfecta de comodidad, estilo y calidad. Situada en Pla Roig, en Calpe, es una zona tranquila, pero al mismo tiempo cercana a diversos servicios, la playa, restaurantes y acogedoras terrazas.
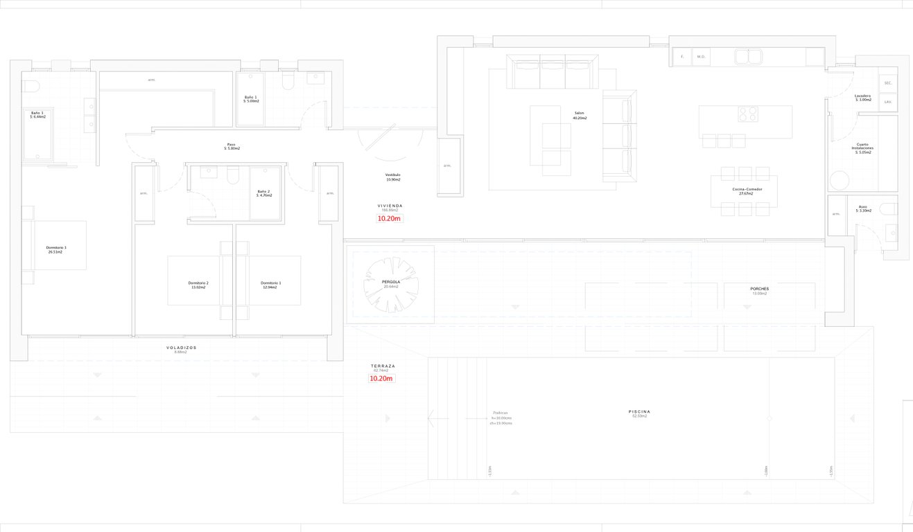
Al entrar, se accede a un amplio vestíbulo que da paso a las diferentes zonas de la casa. A la izquierda se encuentra el amplio salón con comedor y cocina abiertos contiguos. La cocina es realmente llamativa, con una isla central, y está totalmente equipada con electrodomésticos Bosch de alta gama o marcas equivalentes. También hay un lavadero independiente con zona de lavandería y espacio de almacenamiento adicional.
A la derecha del vestíbulo se encuentra la zona de dormitorios. La suite principal cuenta con un vestidor y un cuarto de baño en suite. Además, hay un segundo dormitorio en suite y un tercer dormitorio que da acceso a un cuarto de baño en el pasillo. Las puertas correderas de cristal dan acceso directo a la terraza y al jardín. Esta fachada acristalada proporciona mucha luz natural y una transición fluida entre el interior y el exterior.
La villa está equipada con calefacción por suelo radiante (bomba de calor), aire acondicionado y un avanzado sistema domótico. Gracias a las persianas automáticas, los termostatos Airzone en cada habitación y un sistema de alarma, siempre tendrá el control total de su hogar. La casa también cuenta con una barbacoa, un cuarto de baño exterior completamente equipado y una plaza de aparcamiento para dos coches.
El jardín está diseñado con la simplicidad y la facilidad de mantenimiento en mente, y ofrece una privacidad óptima gracias a los cipreses estratégicamente colocados. La preciosa piscina de 52 m² es un lugar perfecto para relajarse, y una ducha exterior proporciona un confort adicional. La terraza ofrece mucho espacio para crear acogedoras zonas de descanso donde disfrutar del maravilloso clima mediterráneo durante todo el año.
¿Le interesa esta preciosa villa Póngase en contacto con uno de nuestros empleados para obtener más información o concertar una visita. ¡Estaremos encantados de ayudarle!
El precio mostrado no incluye impuestos ni gastos de compra / La oferta está sujeta a errores, cambios de precio, disponibilidad, omisión y/o retirada del mercado sin previo aviso / Muebles y contenidos según acuerdo personalizado y no según las fotos de la presentación