Villa de Lujo en Moraira
2.175.000 €
Villa de Lujo en Moraira
Descripció
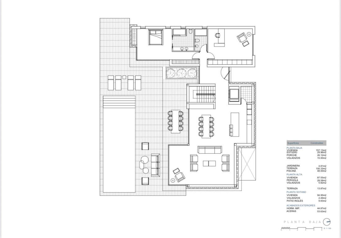
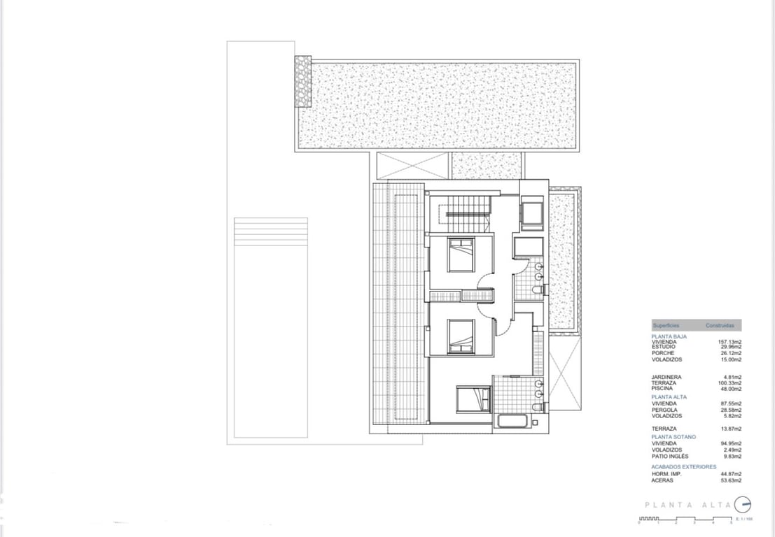
Magnifica Villa de lujo en construcción en Moraira, a tan solo 10 minutos de la playa. Esta propiedad consta de seis dormitorios, cinco baños y un aseo de invitados. En la planta principal tendremos un gran salóncomedor con mucha luz natural gracias a sus grandes ventanales con salida a la piscina y una moderna cocina abierta con barra, perfecta para entretener a nuestros invitados. Un aseo de cortesía, un amplio dormitorio doble con baño en suite, otro dormitorio doble, un baño completo, cuarto de limpieza y trastero. En la planta superior, que además de poder acceder por las escaleras, también tendrá ascensor para mayor comodidad, nos encontraremos un dormitorio principal con vestidor y baño en suite y dos dormitorios dobles que comparten un baño completo. Toda la villa tendrá, suelo radiante, ventanas de doble acristalamiento y aire acondicionado.